
dreieins-Bildungszentrum Plus // Berlin
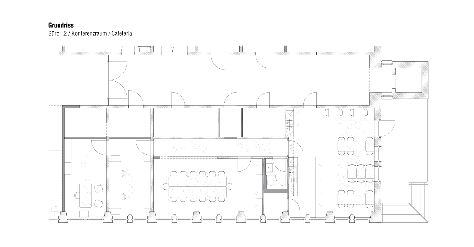
Im Zuge der Modernisierung der bip Grundschule in Berlin Kaulsdorf soll die ehemalige Hausmeisterwohnung zu einem Bildungszentrum umgebaut werden. Bei dem Gebäude handelt es sich um einen alten Plattenbau, der - ganz typisch für diese Art von Bauten - von Beton, Terrazzo-Fliesen und verhältnismäßig niedrigen Decken geprägt ist.
Das Bildungszentrum beinhaltet als Herzstück ein Café, welches in Zukunft als Begegnungsstätte für alle Menschen in der Nachbarschaft dienen soll. Bei unserer Planung war daher wichtig, das Konzept offen zu halten für Menschen im Alter von 0 bis 99, aller sozialer Schichten und unabhängig ihrer Herkunft. Neben dem Café gibt es einen Seminarraum und zwei Büros.
Das Café soll neben den klassischen Funktionen eines Cafés auch für kreative Aktivitäten, für Treffen verschiedener Gruppen und zum Kochen und Backen mit Kita- und Schulkindern dienen.
Das Hauptelement ist ein wandgreifendes Regal, welches wie aus unterschiedlich großen Kisten aufeinander gestapelt zu sein scheint. Einige der Fächer bekommen Fronten um auch Kleinkram zu bändigen. Ebenfalls in das Regal integriert ist eine Küchenzeile, welche sich im gegenüberliegenden Tresen fortsetzt. Die Materialanmutung vereint rustikales in Form von Seekieferplatten, sowie edlere Komponenten in Form von matten, anthrazitfarbenen und weißen Fronten. Ergänzt werden diese durch den durchgängig verlegten grauen Linoleumboden, weißen Tischen und hellblauen Sitzmöbeln, welche Bezug nehmen auf die CI-Farben der bip gGmbH. Als Highlight kommt eine Wandgestaltung in Form von, eigens für diesen Ort gezeichneten, Illustrationen. Das Materialkonzept wird in den angrenzenden Räumen fortgesetzt. Ergänzend dazu wurde ein Lichtkonzept entwickelt, welches gleichzeitig Gestaltungsmittel für die Decke ist, die Räume auflockert und durch seine Materialität und Anordnung der Akustik zuträglich ist: es besteht aus einer Vielzahl unterschiedlicher Leuchtenschirme in verschiedenen Größen, welche in bestimmten Deckenbereichen abgehängt werden. So zum Beispiel im Flur oder über dem Gastraum im Café, wo durch die Möbelanordnung und/oder Raumbeschaffenheit außer an der Decke wenig Raum für Gestaltung bleibt. So wird mit einfachen Mitteln Gemütlichkeit und Atmosphäre kreiert.
Fertigstellung: 01/17
Fotos: © T. Heymann

