
dreieins-Verwaltung // Berlin
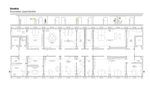
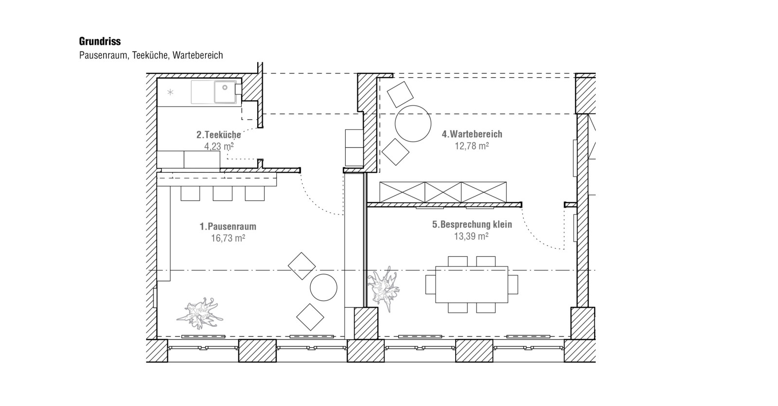
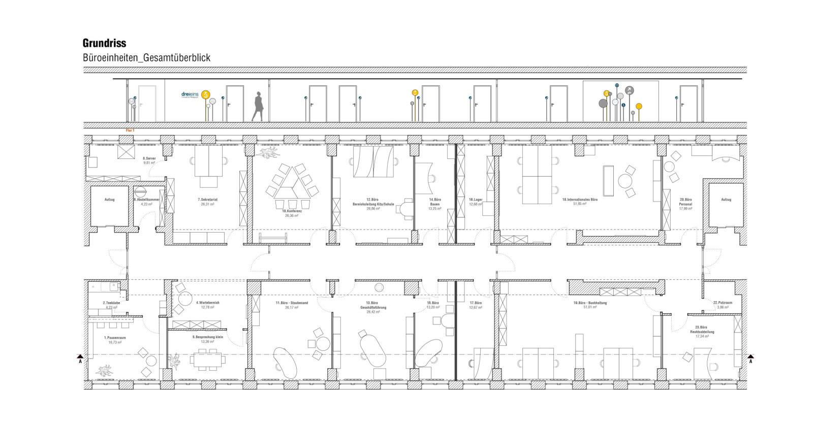
Die neuen Verwaltungsräume für einen privaten Bildungsträger in Berlin galt es zu gestalten und konform mit der Arbeitsstättenrichtlinie zu möblieren. Neben kleineren baulichen Eingriffen, wie dem Teilen von zwei großen Büros in vier kleine, war uns strukturell besonders wichtig die nur vier Quadratmeter große Teeküche ohne Fenster von Ihrem Außenseiterdasein zu befreien und in Einklang mit dem angrenzenden Pausenraum zu bringen. Aus baulichen und platzbedingten Gründen, war eine komplette Öffnung des Raumes nicht möglich, weswegen wir uns für einen großzügigen Durchbruch auf Tresenhöhe entschieden. Dadurch wurden beide Räume optisch miteinander verbunden und die Küche mit Tageslicht und einem Ausblick und Gefühl von Weite auf wenig Fläche versorgt.
Das gestalterische Konzept greift prägende Elemente aus dem grafischen CI-Konzept auf, so sind die eingebrachten Möbel und Formen eher rund, wie auch die charakteristischen Kreise des Logos. Diese Kreise finden sich im Rapport gesetzt an einigen Stellen als Tapete wieder. Übergroß in Form von Folienplots auf die Wände projiziert dienen sie als spielerische Wandgestaltung, der Bezug zum kindlichen Bildungsangebot der Firma wird hergestellt ohne übertrieben zu werden. Auch die eingebrachten Farbakzente orientieren sich an den CI-Farben Gelb, Dunkelblau, Hellblau und rot, ergänzt und zur Ruhe gebracht werden diese durch Holzkomponenten und graue Elemente.
Fertigstellung: 07/19
Fotos: © Z'sAM Raumkonzepte

