Paritätisches Bildungswerk // Magdeburg

 

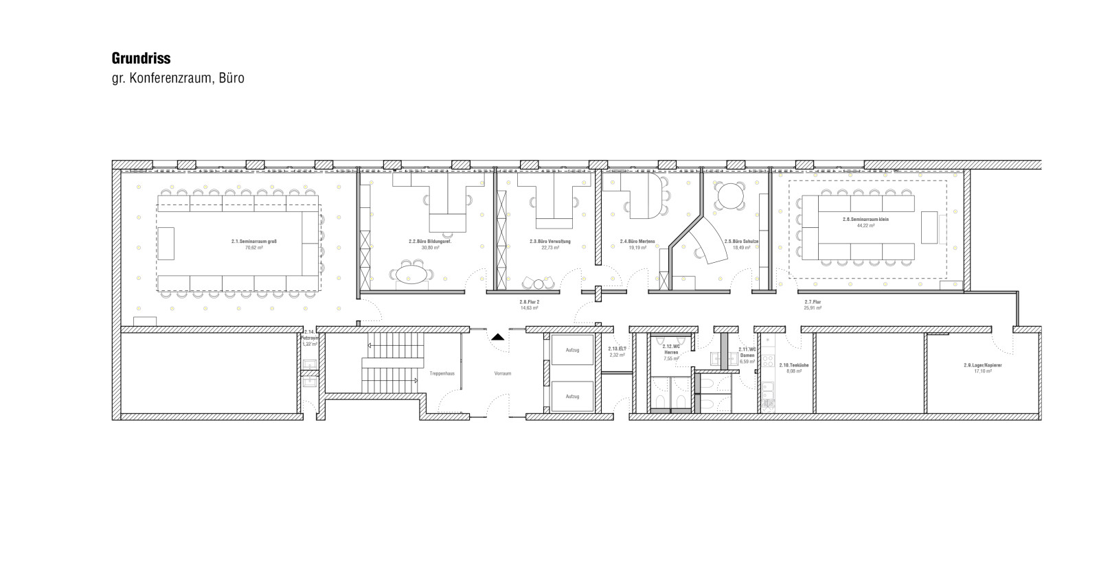
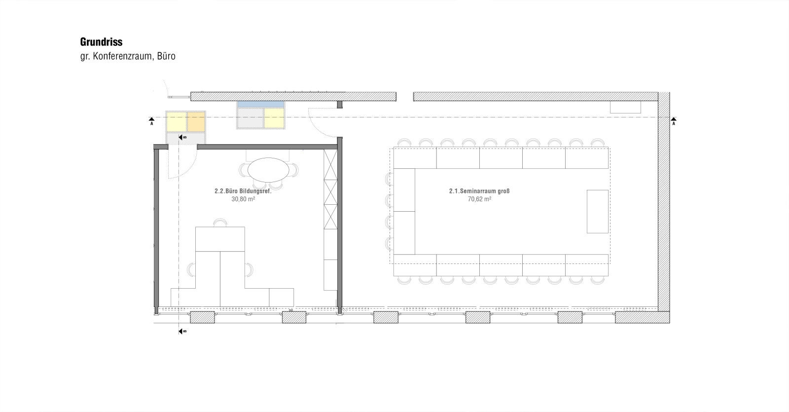
Ein Träger für Erwachsenenbildung in Magdeburg bezieht eine zweite Etage und möchte diese sowohl strukturell als auch gestalterisch komplett neu planen. Simpel gesagt handelt es sich hier um „einmal komplett entkernen und wieder neu reinstellen“. So wurden in der 300qm großen Etage bis auf eine Brandschutzwand zunächst alle Wände der früheren Büros entfernt und zwei Seminarräume und vier unterschiedlich große Büros neu eingefügt. Auch die dienenden Räume wie Lager, Teeküche und Toiletten blieben in Ihrer ursprünglichen Form erhalten, aber wurden renoviert. Die funktionale Neuordnung sollte für eine bessere Verbindung der Mitarbeiter untereinander sorgen und gleichzeitig den ungestörten Seminarbetrieb ermöglichen.

Das gestalterische Konzept ergibt sich aus einer weiteren Reihe funktionaler Anforderungen: die Notwenigkeit an zahlreichen unterschiedlichen Präsentations- und Interaktionsflächen. Um diese nicht einfach nur vereinzelt an die Wand zu kleben, entwickelten wir ein modulares Wandsystem, welches all diese funktionalen Komponenten mit gestalterischen Komponenten vereint. Das Wandsystem besteht aus Holzrahmen, welche zu unterschiedlich großen Feldern angeordnet werden können, in denen sich dann alle Präsentations- und Interaktionsflächen wiederfinden. Dazu gehören Whiteboards, Flipcharts, Kork zum Anpinnen, ein Metallgeflecht zum Anhängen von Jacken mittels Haken, Farbflächen zur Stärkung des CI-Konzeptes, Filz-Pinnwände sowie Moospaneele als akustische Maßnahme und zur Einbringung einer natürlichen Komponente. In jedem Raum ist dieses System als roter Faden der Gestaltung wiederzufinden, jedoch ist es jedes Mal individuell angeordnet und nach Bedarf zusammengestellt. Die restliche Gestaltung nimmt sich bewusst zurück, damit die Wandgestaltung zur Geltung kommt. Möbel in weiß mit hellen Holzkomponenten ergänzen das Bild, warmgraue Wänden lassen sie hervortreten und sorgen für eine warme Atmosphäre.

 

Fertigstellung: 12/19
Fotos: © Z'sAM Raumkonzepte

 

[gallery ID=9]