
Einfamilienhaus Ammendorf // Halle Saale
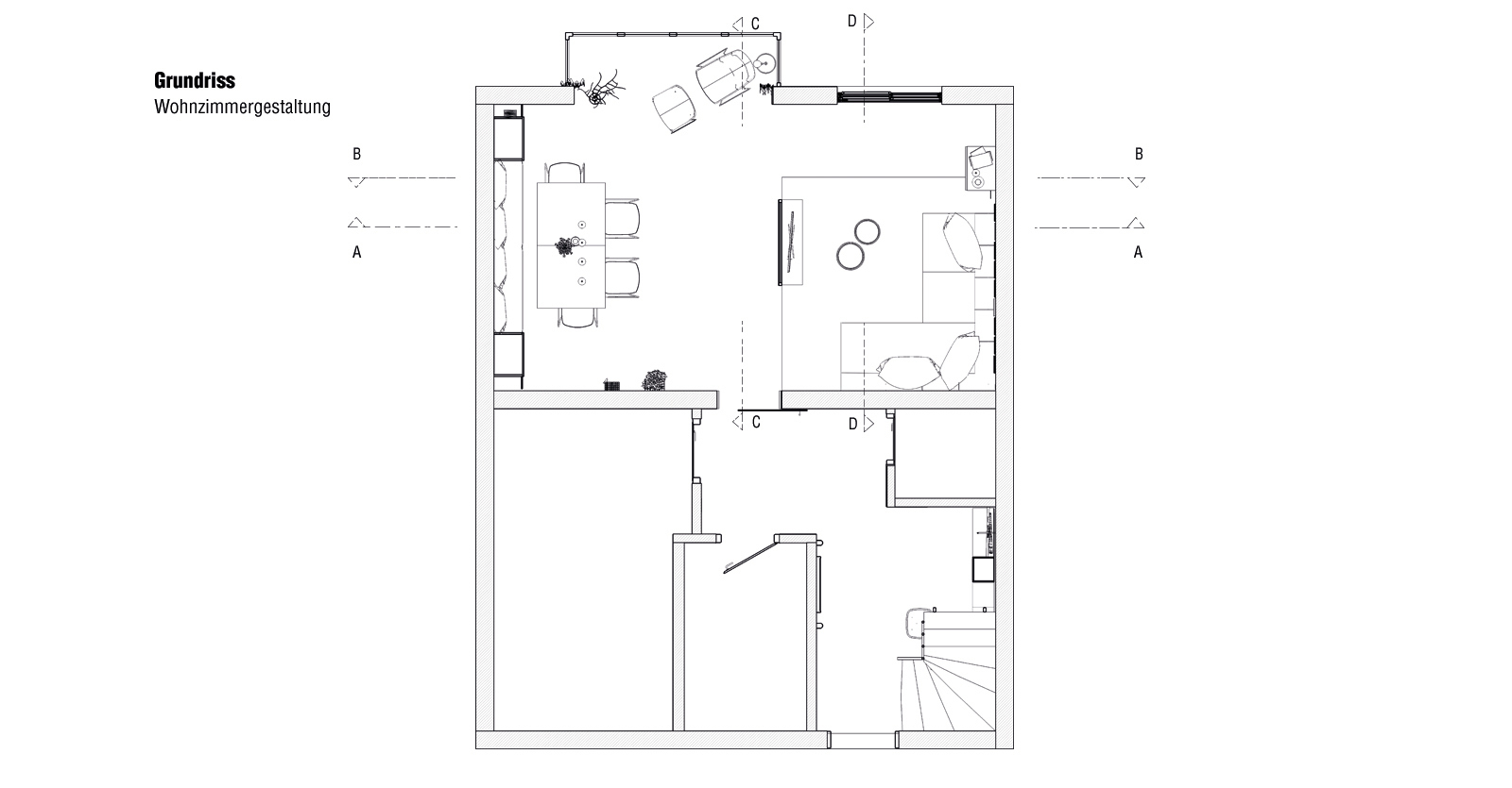
Für ein junges Paar in Halle sollten als Visitenkarte des Hauses der Eingangsbereich und das Wohnzimmer eines Einfamilienhauses neugestaltet werden. Auf relativ wenig Fläche und mit einem kleinen Budget wurden möglichst viele Funktionen vereint. Durch klare Linien und eine einheitliche Gestaltung von Flur und Wohnzimmer wird gemütliche Modernität generiert. Die Farbe Grün als Akzentfarbe spiegelt den Wunsch nach Entspannung, Harmonie und Frische wieder, sie taucht in Form einer grafisch gemusterten Tapete und verschiedener Bilder auf. Geprägt sind die Räume durch ihre holzverschalten Decken, die mit einer neuen weißen Lasur einen modernen Touch erhalten, ergänzend dazu wird ein graubrauner Amtico-Boden verlegt, die Wände bleiben größtenteils weiß um möglichst viel Licht zu erhalten.
Im Flur wird die Wand hinter der Treppe geschossübergreifend grau gestrichen, um die Verbindung zwischen oben und unten zu betonen und dem recht verschachtelten Raum optisch einen Endpunkt zu geben. Begrüßt wird man durch einen großformatigen Schriftzug an der Wand gegenüber der Eingangstür. Die Möblierung im Flur spielt sich platzsparend vorwiegend unter der Treppe ab, Luftigkeit und Leichtigkeit wird zusätzlich durch zwei große Feder-Pendelleuchten im Zwischengang symbolisiert.
Die Herausforderung im Wohnzimmer war, den Raum trotz verschiedenen Durchgängen und großen Fensterfronten zu zonieren. Da Gastfreundschaft im Leben des Paares eine große Rolle spielt, liegt der räumliche Fokus auf einem großen Essbereich mit viel Stauraum und bequemen Sitzmöglichkeiten. Um einen privateren Wohnbereich zu erhalten und dennoch Leichtigkeit und Transparenz des Bestandsraumes zu erhalten, entwarfen wir einen mit Stoff bespannten Raumteiler. Bestehend aus einer einfachen, mit Stoff bespannten Holzkonstruktion ist dieser zweifelsohne das Highlight des Entwurfs, zusätzlich lässt sich der obere Teil Abends dezent von Innen beleuchten. Dahinter findet das schon im Besitz der Kunden befindliche Sofa ihren Platz und wird ergänzt mit einer Wandinstallation aus quadratischen Muster-Platten.
Fertigstellung: 05/16
„(...) Meine Wünsche wurden durch Z`sAM Raumkonzepte in die Realität umgesetzt. Durch ein, zwei vorherige Gespräche wurde geschickt mein Stil herausgefiltert. (…) Würde ich jederzeit wieder so machen. Kann ich allen weiterempfehlen, die in Sachen Einrichtung Unterstützung brauchen. Man spart auch viel Zeit und Nerven, da das Z`sAM Team alles bis ins letzte Detail plant.."

